РС-1 шнеко-роторный снегоочиститель на шасси ЗиС-150

РС-1 шнеко-роторный снегоочиститель на шасси ЗиС-150 4х2 для погрузки в автомобиль или отбрасывания в сторону снега, собранного в валы, шнеков D 400 мм 2 шт., ротор D 900 мм 1 шт., рабочие: мест: 2, ширина 2.5 м, толщина снега до 0.7 м, скорость 0.58-13.7 км/час, дальность отбрасывания снега 18 м, средняя производительность 450 т/час, привод рабочей части от ЯАЗ-204 110 лс, полный вес 8.36 тонн, максимальная транспортная скорость до 25 км/час.
Двигатель: ЗиС-120 90 лс
мехзавод ТГО г. Ленинграда, начало 1950-х годов.
Описание оригинала

Начало выпуска:
Окончание выпуска:
Файлы
Изготовитель: Механический завод городского треста очистки Управления предприятий коммунального обслуживания Ленгорисполкома.
Из доступных мне первоисточников складывается нижеследующая хронология появления шнекороторных снегоочистителей в СССР.
Самое раннее и достаточно подробное описание реального шнекороторного снегоочистителя в СССР обнаружил в «Отчете о результатах государственных испытаний опытного образца аэродромного роторного снегоочистителя «АРС», изготовленного на Карачаровском механическом заводе в г. Москве по типу американского снегоочистителя «СНОГО» (Sno-Go), утвержденном начальником УМТС ВВС РККА комбригом Базенковым 22. апреля 1937 г. (См. приложенный PDF). Он был построен на базе гусеничного трактора-тягача «Коминтерн» с двигателем 130 л.с. и вторым таким же двигателем для привода рабочих органов сзади кабины на его платформе.
Этот же снегоочиститель упоминается в статье к.т.н. Бородачева И.И. и инж. Евдокимова Н.И., ВНИИСтройДорМаш, «Снегоочистители для автомобильных дорог» в журнале «Механизация строительства» №2 за 1948 г. (см. прил. PDF), где, согласно введенной со второй половины 1930-х годов в СССР системе индексации дорожных машин, указан присвоенный ему индекс Д-47. Изготовление снегоочистителя Д-47 было прекращено, главным образом, в связи со снятием с производства трактора «Коминтерн».
В этой же статье говорится о шнекороторном снегоочистителе Д-74 на базе гусеничного тягача СТЗ-5, принцип устройства и назначение которого аналогичны снегоочистителю Д-47. Для привода в действие ротора, шнеков и насоса на раме трактора устанавливается форсированный двигатель ЗиС-5 мощностью 85 л. с. при 2 600 об/мин. Из указанной статьи: «Снегоочиститель Д-74, являясь вполне работоспособной машиной. имеете с тем обладал и рядом недостатков. из которых глазными являлись: недостаточная транспортная скорость с навешенной на трактор рабочей частью (5-6 км/час) и недостаточная мощность двигателя для привода рабочих органов. Вследствие этого, а также, главным образом, по причине снятия с производства тягачей СТЗ-5 этот снегоочиститель больше не изготовляется».
Упоминание о первом советском шнекороторном снегоочистителе на колесном ходу найдено в нижеприведенном письме (см. фото):
СССР, Народный Комиссариат Обороны Союза ССР,
Главное Авто-бронетанковое управление Красной Армии,
1-му отделу АТУ, __ сентябрь 1941 г. №__ г. Москва, Красная пл. 2-й Дом
«Сов. секретно» экз. №1
Заместителю Председателя Совета Народных Комиссаров СССР тов. Микояну А.И.
Распоряжением СНК Союза ССР от 23 сентября с/г. № 10769рс (п.9) НКО (ГАБТУ) предложено выделить Карачаровскому Механическому заводу Наркомхоза РСФСР для изготовления "АРС" 255 шт. автошасси ЗиС-5 из них: - 25 шт. в сентябре месяце.
Выполнить решение СНК Союза об отправке в сентябре месяце Карачаровскому заводу 25 автошасси ЗиС-5 не могу, так как НКСредмаш с 29 сентября с/г. прекратил отгрузку НКО автомашин ЗиС.
Прошу обязать НКСредмаш (тов, Акопова немедленно отгрузить на Карачаровский завод в счет фондов НКО на октябрь месяц 25 автошасси ЗиС-5.
Зам. начальника ГАБТУ КА: Военный Комиссар ГАБТУ КА армейский комиссар 2 ранга Бирюков.
Резолюция: Начальник управления приказал немедленно отправить на Карачаровский завод - 25 шт. шасси ЗиС.
Судя по количеству передаваемых шасси ЗиС-5 и срокам эти снегоочистители были поставлены на серийное производство еще до войны, хотя возможно и то, что была изготовлена лишь небольшая установочная партия. Информации о дальнейшей судьбе этих шнекороторов не найдено.
Главная тенденция в послевоенном развитии шнекороторных снегоочистителей в СССР коротко и ясно описана в статье «Развитие механизации уборки улиц в Москве» в журнале «Городское хозяйство Москвы» №1 за 1952 г., автор инж. С.И. Батуркин, лауреат Сталинской премии.
В 1947 г. был сконструирован роторный снегоочиститель на автомобиле ЗиС-5. Привод механизма осуществлялся с помощью двигателя ЗиС-120. Опыт эксплуатации 11 машин в течение нескольких сезонов убедил нас в возможности создания более рациональной конструкции с наличием только основного автомобильного двигателя. При решении этой задачи мы учитывали следующие главнейшие обстоятельства:
а) согласовать кинематику шнеко-роторного механизма с движением автомобиля значительно проще при одном двигателе, чем при двух самостоятельных двигателях;
б) мощность, расходуемая на движение автомашины, не превышает 10% мощности, потребляемой шнеко-роторным механизмом, что позволяет без ущерба совместить привод автомобиля с приводом шнеко-роторного механизма;
в) управлять одним мотором значительно проще, нежели двумя;
г) одномоторная конструкция в эксплуатации дешевле двухмоторной.
Эти принципы были положены в основу при конструировании опытного образца и последующем изготовлении в 1950-51 г. партии роторных снегоочистителей «РС-3» на шасси автомобиля ЗиС-150 (рис. 3-4) и РС-4 на шасси ЗиС-5 (модернизация конструкции 1947 г.). В этих машинах снегоочиститель, состоящий из двух шнеков и лопастного ротора, приводится в действие от промежуточного вала коробки передач через коробку отбора мощности, карданные валы, раздаточный редуктор и цепную передачу. Предохранение механизма от поломки при наезде на препятствие или в случае заклинивания крупных предметов достигается за счет постановки предохранительных фрикционных муфт в трансмиссию привода механизма и контрольных шпилек на привод ротора. Особенностью новой машины, помимо одномоторного привода, является подвеска всего рабочего механизма снегоочистителя над задним мостом автомобиля, что одновременно разгружает переднюю ось и увеличивает сцепной вес машины. Новая машина, как и прежняя, может быть использована при помощи специального лотка как снегопогрузчик. Снегопогрузчики «РС-3» и «РС-4» имеют гидравлическое управление. Подъем механизма, повороты улитки, складывание и раздвигание снегопогрузочного лотка производятся с помощью гидронапорных механизмов, приводимых в действие водителем машины через специальные переключатели.
Эксплуатационная производительность машин на перекидке снега - 550 м3/час, на погрузке - 150 м3/час.
Следующим этапом развития шнекороторного снегоочистителя стала модель Д-262, производство которого взамен Д-166А началось на Щербаковском заводе в 1952 году. Его разработка велась под руководством конструктора Н.В. Киянского на основе конструктивной схемы, предложенной инженером А.Л. Сухоруковым. Одним из основных преимуществ этой машины было применение полноприводного шасси, позволявшего развивать тяговое усилие, необходимое для внедрения рабочего органа в слежавшийся снег. Однако главное отличие от роторных снегоочистителей, изготовлявшихся ранее, состояло в том, что привод ходовой части и рабочего органа выполнялся от одного двигателя, установленного за кабиной водителя (штатный мотор демонтировался). Отбор мощности на все шесть колес от 150-сильного дизеля 2Д-6 (половинка танкового Д-12), а также бесступенчатое изменение скорости перемещения были достигнуты путем ввода в трансмиссию специальной регулируемой турбомуфты.
О прототипе модельки
Из «Справочника по машинам и механизмам для городских коммунальных работ». И.А. Засов, К.М. Полтев, к.т.н. Изд. Минкомхоза РСФСР, М. 1952 г.
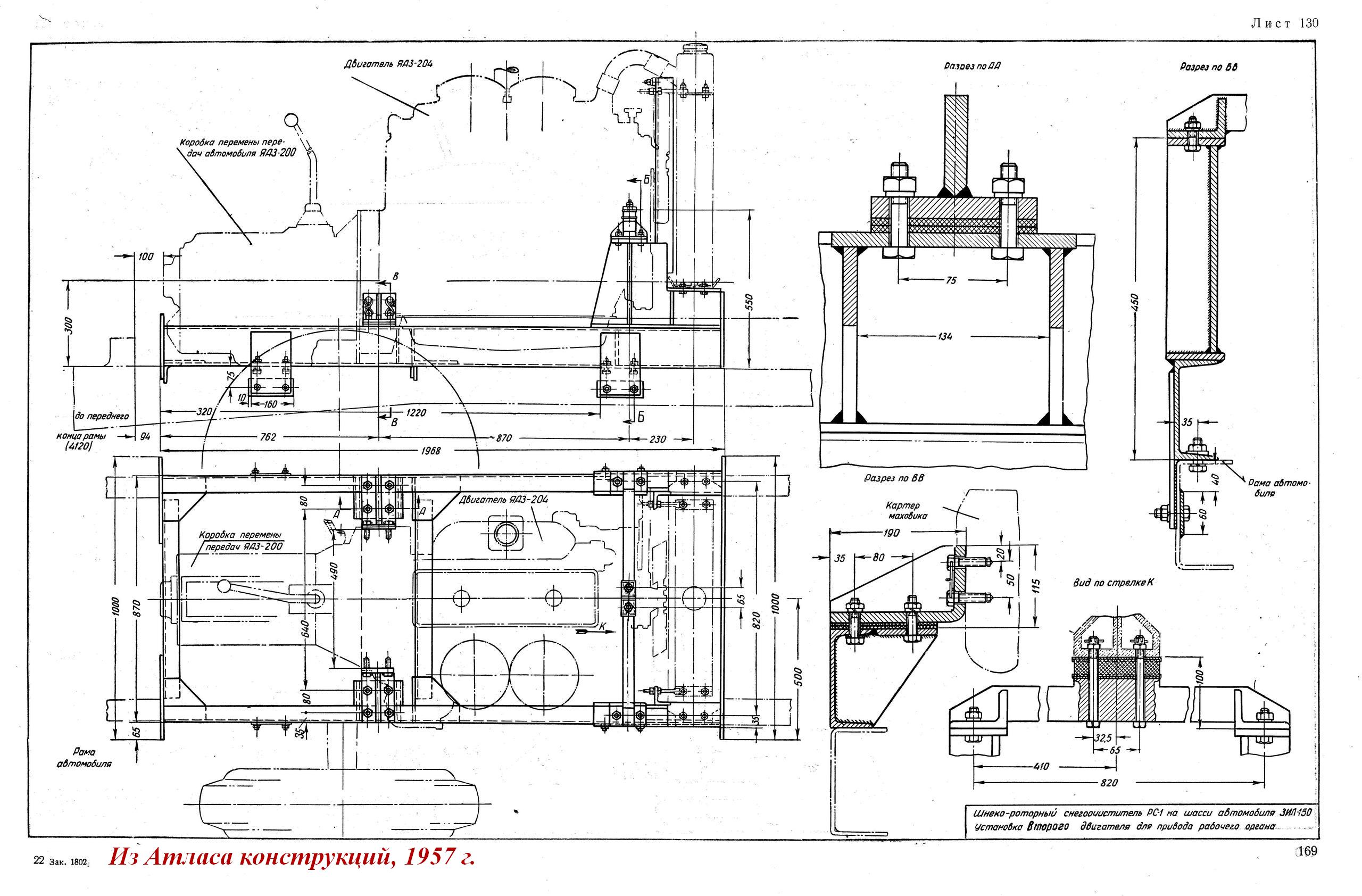
Щнеко-роторный снегоочиститель РС-1 предназначен для отбрасывания в сторону снега, собранного в валы. Применяется на очистке от снега подъездов к городу, очистке набережных — со сбросом снега в реку, а также для погрузки снега в транспортные средства.
Снегоочиститель монтируется на шасси автомобиля и состоит из двух шнеков, ротора, силовой установки и трансмиссии. Шнеки установлены один над другим в металлическом кожухе с открытой передней частью. Каждый шнек имеет разноименно-направленные лопасти, благодаря чему забираемый ими снег направляется к ротору, расположенному в центре кожуха за шнеками. Ротор помещен в улитке, имеющей металлическую каркасную трубу. Улитка с кожухом может перемещаться по оси, изменяя высоту конца трубы, а следовательно, и дальность выброса снега.
Привод шнека и ротора осуществляется от двигателя ЯАЗ-204, установленного в кузове автомобиля, через коробку перемены передач и карданные передачи. Кожух со шнеками может при помощи механизма опускаться в рабочее положение и подниматься в транспортное.
Работа снегоочистителя происходит следующим образом. Плужные снегоочистители сгребают снег в валы. Шнеки роторного снегоочистителя захватывают снег из вала, перемещают его к ротору, который выбрасывает снег через трубу с большой скоростью, откладывая его на далеком расстоянии от места забора или направляя снег через специальное устройство на конце трубы в транспортные средства
Техническая характеристика.
|
Модель |
|
РС-1 |
|
Шасси автомобиля .... |
марка |
ЗиС-150 |
|
Производительность при работе на выброс |
м3/час |
1375 |
|
Число рабочих скоростей на очистке |
шт. |
14 |
|
Наименьшая скорость |
км/час |
0,580 |
|
Наибольшая скорость |
„ |
13,70 |
|
Ширина захватываемой полосы |
мм |
2500 |
|
Высота захвата |
» |
1000 |
|
Двигатель для привода ротора, шнека |
марка |
ЯАЗ-204 |
|
Мощность двигателя |
л. с. |
110 |
|
при числе оборотов |
об./мин. |
2000 |
|
Дальность отбрасывания снега |
м |
до 25 |
|
Число оборотов ротора . |
об/мин. |
350 |
|
Число оборотов шнеков |
» |
259 |
|
Угол поворота улитки ротора в сторону (от вертикали). |
град. |
52 |
|
Система поворота улитки и подъема рабочего органа .. |
тип |
Рычажно-гидравлическая |
|
Рабочее давление, гидравлического насоса |
ати |
25-30 |
|
Вес снегоочистителя |
кг |
8360 |
|
Изготовитель |
Трест очистки Ленгорисполкома |
|
Из статьи Н.С. Маркова «Советские шнекороторные снегоочистители» на dzen.ru
Один из первых советских шнекороторных снегоочистителей на колесном ходу разработали вскоре после войны в КБ Управления предприятий коммунального обслуживания Ленгорисполкома. Постройкой опытного образца занимался Механический завод городского треста очистки, входящий в состав того же самого Управления. «Шнекоротор» этот получил название РС-1. В качестве основы для постройки РС-1 использовалось серийное шасси ЗиС-150, штатная трансмиссия которого была дополнена демультипликатором с большими передаточными числами: его установка обуславливалась необходимостью получить возможность передвижения с «черепашьей» скоростью, от 0,58 км/ч и выше. Всего у машины получалось 14 рабочих передач и одна транспортная, на которой РС-1 мог передвигаться из гаража к месту работы со скоростью до 20 км/ч. Для привода снегоуборочного оборудования у РС-1 позади кабины стоял еще один двигатель – дизельный ЯАЗ-204 мощностью 110 л.с. со своей 5-ступенчатой коробкой передач, с помощью которой выбиралась частота вращения шнеков и ротора. Эта машина обладала высокой производительностью: на режиме максимальной мощности могла перекидать за час до 1375 кубометров снега на расстояние порядка 20-25 метров. Но имела свои недостатки: во-первых, была крайне тяжелой (8360 кг), причем нагрузка на передний мост превышала предельно допустимую для ЗиС-150. Во-вторых, наличие на одной машине бензинового и дизельного двигателя не позволяло работать им на одном сорте топлива и заставляло иметь два топливных бака. Кроме того, ярославские дизели до конца 1940-х годов оставались страшным дефицитом, не отличаясь надежностью. Так что о серийном выпуске РС-1 речь не шла.
По этой причине ленинградцы разработали упрощенный вариант «шнекоротора», который получил название РС-3Л. У него для привода снегоуборочного оборудования позади кабины стоял точно такой же бензиновый двигатель ЗиС-120, какой использовался и для передвижения базового шасси ЗиС-150. Конечно, производительность снегоуборщика с такой силовой установкой сильно снизилась – почти вдвое, до 700 кубометров снега в час. Однако до более приемлемой величины – 7150 кг – снизился и собственный вес машины. Партию РС-3Л построил в 1948 году все тот же Механический завод городского треста очистки Ленгорисполкома.
Из справочника «Машины и механизмы для городского хозяйства». И.А. Засов, К.М. Полтев, к.т.н. Минкомхоз РСФСР, Москва 1955.
- Шнекороторные снегоочистители
Шнекороторный снегоочиститель предназначен для расчистки снежных наносов на больших площадях и автомобильных дорогах при толщине снежного покрова свыше 1 м при большой его плотности. В городских условиях применяется для отбрасывания в реку или канал снега, собранного в валы, при очистке набережных, при расчистке от снега площадей с отбрасыванием снега на свободную от проезда часть территории, а также при расчистке от снега автомобильных дорог на подходах к городам.
В настоящее время выпускаются следующие модели шнеко-роторных снегоочистителей:
РС-1 - на базе автомобиля ЗиС-150 (ленинградский тип):
РС-3 - на базе автомобиля ЗиС-150 (московский тип);
Д-166 — на базе автомобиля МАЗ-200;
Д-262 — на базе автомобиля ЗиС-151.
Привод рабочих органов шнекороторного снегоочистителя: на снегоочистителе РС-1 - от отдельного двигателя ЗиС-120: на снегоочистителе PC-3 от двигателя автомобиля, на снегоочистителе Д-166 — от отдельного двигателя 2-Д6; на снегоочистителе Д-262 — от одного двигателя 2-Д6, установленного вместо основного двигателя автомобиля.
Перечисленные модели шнекороторных снегоочистителей имеют ряд общих конструктивных принципов, отличаясь устройством отдельных узлов, размерами и производительностью.
Основными составными частями снегоочистителя являются: шасси автомобиля, рабочий орган снегоочистителя, основная рама, трансмиссия, гидравлическая система управления рабочими органами. Некоторые типы снегоочистителей имеют, кроме того, дополнительный двигатель.
Рабочий орган снегоочистителя предназначен для захвата снега и выброса его в сторону. В состав рабочего органа входят: корпус, шнеки, ротор, привод ротора, опорные лыжи, редукторы, цепная передача, карданный вал и откидной щиток.
Шнеки расположены горизонтально один над другим, перпендикулярно продольной оси автомобиля. Оси шнеков выполнены из пустотелых труб к которым по винтовой линии приварены витки шнека. Направление винтовой линии — от концов к центру. Шнеки расположены в корпусе из листовой стали, в нижней части которого установлен горизонтальный нож для подрезания снега. В центре задней стенки корпуса имеется отверстие, соединенное с кожухом ротора. Ротор представляет собой лопастный вентилятор. Он заключен и самостоятельный кожух, в верхней части которого имеется направляющая труба. Кожух вместе с направляющей трубой может при помощи гидравлического цилиндра поворачиваться вправо и влево, в соответствии с необходимым направлением выброса струн снега.
Специальным устройством можно опускать рабочий орган для установки в рабочее положение и поднимать его в транспортное положение.
Трансмиссии снегоочистителей имеют различные схемы в зависимости от наличия или отсутствия специального двигателя для привода шнеков и ротора. Гидравлическая система состоит из масляного насоса, двух цилиндров, |распределительного устройства и масляного бака.
Для уменьшения скорости автомобиля при работе снегоочистителя в трансмиссию шасси вводится демультипликатор.
Порядок работы снегоочистителя при удалении валов снега следующий. Двигаясь вдоль вала, снегоочиститель захватывает снег шнеками, которые подают его к ротору. Ротор выбрасывает снег из направляющей трубы в сторону с большой скоростью, благодаря чему он отбрасывается на значительное расстояние и распределяется по площади слоем небольшой толщины, не образуя валов, как при работе плужных снегоочистителей.
Применение шнеко-роторных снегоочистителей особенно рационально и городских условиях для удаления валов снега с набережных в реку или канал. Применение снегоочистителей этого типа крайне желательно также для расчистки снега на автомобильных дорогах на подъездах к городам, так как при работе шнеко-роторного снегоочистителя не создается валов и не требуется дополнительных работ по их разравниванию.
Техническая характеристика шнеко-роторных снегоочистителей
|
Модель |
|
РС-1 (по Маркову Н.С. РС-3Л) |
РС-3 |
Д-262 |
Д-166 |
|
Шасси автомобиля |
модель |
ЗиС-150 |
ЗиС-150 |
ЗиС-151 |
МАЗ-200 |
|
Ширина очищаемой полосы |
м |
2,5 |
2,4 |
2,65 |
3,1 |
|
Наибольшая толщина убираемого снега |
» |
1 |
1,2 |
1,2 |
1.4 |
|
Дальность отбрасывания снега (основной массы) |
м |
18 |
18 |
20 |
20 |
|
Средняя производительность |
м3/час |
760 |
600 |
900 |
1000 |
|
Транспортная скорость |
км/час |
25 |
25 |
25 |
25 |
|
Двигатель привода |
— |
Отдельный ЗиС-120 |
Двигатель автомобиля ЗиС-150 |
2Д-6 взамен двигателя автомобиля |
Отдельный 2Д-6 |
|
Мощность двигателя |
л. с. |
90 |
90 |
150 |
150 |
|
При числе оборотов |
об/мин |
2700 |
2700 |
1500 |
1500 |
|
Шнеки |
|||||
|
Количество |
шт. |
2 |
2 |
2 |
2 |
|
Диаметр шнека |
мм |
400 |
400 |
360 |
500 |
|
Число оборотов |
об/мин |
208 |
210 |
320 |
228 |
|
Ротор |
|||||
|
Количество |
шт. |
1 |
1 |
1 |
1 |
|
Диаметр ротора |
мм |
900 |
940 |
965 |
975 |
|
Число оборотов |
об/мин |
350 |
450 |
425 |
408 |
|
Привод управления рабочих органов |
тип |
Гидравлический |
|||
|
Количество гидроцилиндров |
шт. |
2 |
2 |
2 (двойного действия) |
1 |
|
Габаритные размеры: |
|||||
|
длина |
мм |
7380 |
6550 |
8177 |
9800 |
|
ширина. |
» |
2500 |
2435 |
2645 |
3170 |
|
высота |
» |
2550 |
2500 |
2500 |
2820 |
|
Вес (общий) |
кг |
7150 |
6200 |
9800 |
15690 |
|
Нагрузка на переднюю ось |
» |
4210 |
1600 |
3780 |
4840 |
|
Нагрузка на заднюю ось |
» |
2940 |
4600 |
6020 |
10850 |
|
Изготовитель |
— |
Трест очистки Ленгорисполкома |
Управление благоустройства Мосгорисполкома |
Министерство строительного и дорожного машиностроения СССР |
|
Техническая характеристика.
|
Модель |
|
РС-1 |
|
Шасси автомобиля .... |
марка |
ЗиС-150 |
|
Производительность при работе на выброс |
м3/час |
1375 |
|
Число рабочих скоростей на очистке |
шт. |
14 |
|
Наименьшая скорость |
км/час |
0,580 |
|
Наибольшая скорость |
„ |
13,70 |
|
Ширина захватываемой полосы |
мм |
2500 |
|
Высота захвата |
» |
1000 |
|
Двигатель для привода ротора, шнека |
марка |
ЯАЗ-204 |
|
Мощность двигателя |
л. с. |
110 |
|
при числе оборотов |
об./мин. |
2000 |
|
Дальность отбрасывания снега |
м |
до 25 |
|
Число оборотов ротора . |
об/мин. |
350 |
|
Число оборотов шнеков |
» |
259 |
|
Угол поворота улитки ротора в сторону (от вертикали). |
град. |
52 |
|
Система поворота улитки и подъема рабочего органа .. |
тип |
Рычажно-гидравлическая |
|
Рабочее давление, гидравлического насоса |
ати |
25-30 |
|
Вес снегоочистителя |
кг |
8360 |
|
Изготовитель |
Трест очистки Ленгорисполкома |
|
Техническая характеристика шнеко-роторных снегоочистителей
|
Модель |
|
РС-1 (по Маркову Н.С. РС-3Л) |
РС-3 |
Д-262 |
Д-166 |
|
Шасси автомобиля |
модель |
ЗиС-150 |
ЗиС-150 |
ЗиС-151 |
МАЗ-200 |
|
Ширина очищаемой полосы |
м |
2,5 |
2,4 |
2,65 |
3,1 |
|
Наибольшая толщина убираемого снега |
» |
1 |
1,2 |
1,2 |
1.4 |
|
Дальность отбрасывания снега (основной массы) |
м |
18 |
18 |
20 |
20 |
|
Средняя производительность |
м3/час |
760 |
600 |
900 |
1000 |
|
Транспортная скорость |
км/час |
25 |
25 |
25 |
25 |
|
Двигатель привода |
— |
Отдельный ЗиС-120 |
Двигатель автомобиля ЗиС-150 |
2Д-6 взамен двигателя автомобиля |
Отдельный 2Д-6 |
|
Мощность двигателя |
л. с. |
90 |
90 |
150 |
150 |
|
При числе оборотов |
об/мин |
2700 |
2700 |
1500 |
1500 |
|
Шнеки |
|||||
|
Количество |
шт. |
2 |
2 |
2 |
2 |
|
Диаметр шнека |
мм |
400 |
400 |
360 |
500 |
|
Число оборотов |
об/мин |
208 |
210 |
320 |
228 |
|
Ротор |
|||||
|
Количество |
шт. |
1 |
1 |
1 |
1 |
|
Диаметр ротора |
мм |
900 |
940 |
965 |
975 |
|
Число оборотов |
об/мин |
350 |
450 |
425 |
408 |
|
Привод управления рабочих органов |
тип |
Гидравлический |
|||
|
Количество гидроцилиндров |
шт. |
2 |
2 |
2 (двойного действия) |
1 |
|
Габаритные размеры: |
|||||
|
длина |
мм |
7380 |
6550 |
8177 |
9800 |
|
ширина. |
» |
2500 |
2435 |
2645 |
3170 |
|
высота |
» |
2550 |
2500 |
2500 |
2820 |
|
Вес (общий) |
кг |
7150 |
6200 |
9800 |
15690 |
|
Нагрузка на переднюю ось |
» |
4210 |
1600 |
3780 |
4840 |
|
Нагрузка на заднюю ось |
» |
2940 |
4600 |
6020 |
10850 |
|
Изготовитель |
— |
Трест очистки Ленгорисполкома |
Управление благоустройства Мосгорисполкома |
Министерство строительного и дорожного машиностроения СССР |
|



















































